
Une décision qui répond à de nombreux besoins
Après réflexions, la décision a été prise d’agrandir le siège social de COFORET construit en 2003 à Lamure-sur-Azergues.
Parce qu’au fil du temps, la coopérative a renforcé ses effectifs pour répondre au développement de ses activités, les besoins et les conditions de travail évoluent, un constat partagé a été établi et le besoin d’agrandir les bureaux s’est fait ressentir.
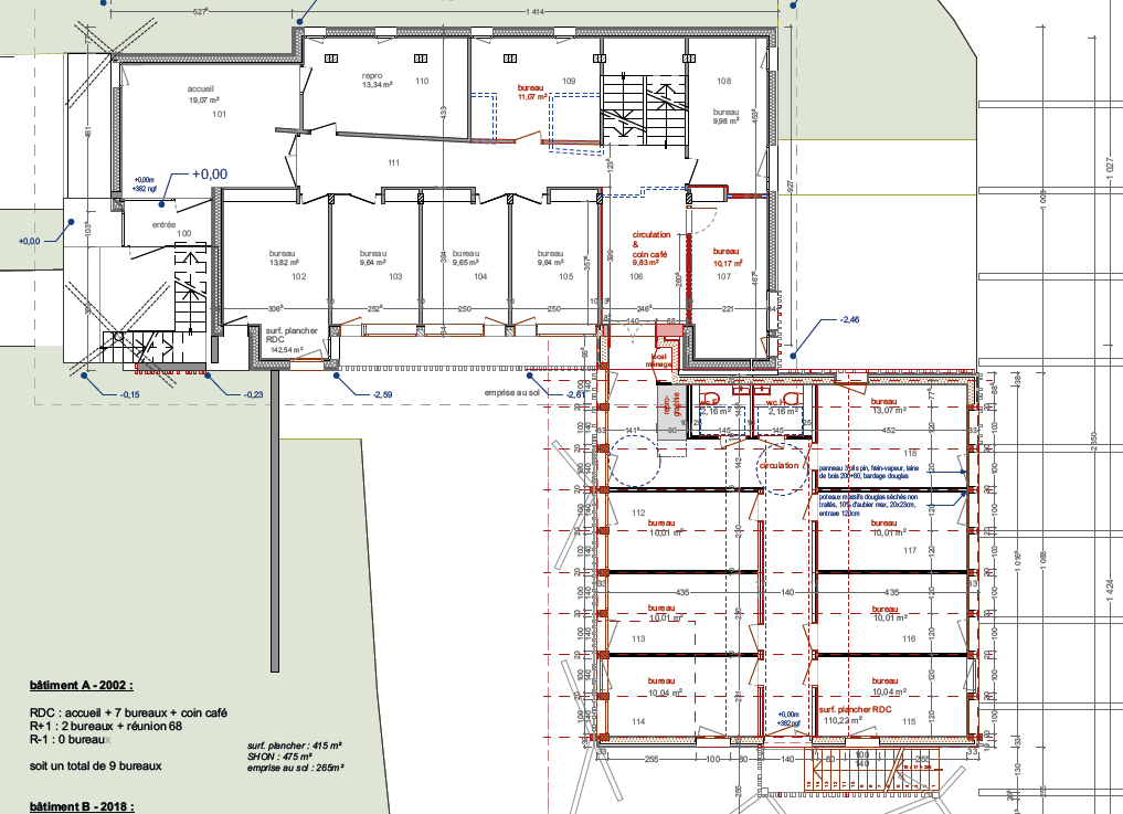
Ainsi, pour le confort de tous, le conseil d’administration, en collaboration avec la direction de COFORET, a validé un projet d’agrandissement de 210 m².

Un projet et des valeurs
Au quotidien la coopérative promeut la préservation de l’environnement et l’utilisation du bois, elle met en avant son rôle et ses missions pour la gestion durable des forêts. Aussi, il était primordial pour COFORET de construire un bâtiment qui lui ressemble, avec des matériaux biosourcés, qui corresponde à ses valeurs : durable et écoresponsable.

Quelques points caractéristiques du futur bâtiment :
- Idéal pour travailler au quotidien, accueillir les apprentis et également les collaborateurs de passage à Lamure, cet agrandissement permet de créer :
- 10 postes de travail supplémentaires
- Une salle de réunion
- Un coin café convivial et accueillant
- 1 salle de repos mêlant repas et espace détente
- 4 sanitaires
- 1 espace reprographie
- COFORET alloue un budget de 560 k€ pour ce projet.
- La coopérative a confié la conception et réalisation du projet à l’atelier d’architecture Herrgott & Farabosc, architectes DPLG spécialistes en construction bois local
- Le bâtiment sera connecté au réseau de chauffage existant alimenté par notre chaudière bois
- Le bâtiment bioclimatique, basse consommation privilégiera le matériaux bois dans tous ses états, en structure, isolant, façades et aménagements intérieurs. Les murs sont 100% bois. La structure est entièrement en bois massif. Mixité des essences : notamment Douglas, Sapin, Épicéa, Hêtre. Un confort acoustique optimal. Une optimisation des quantités de bois utilisés limitant les chutes et gâchis de matériaux.
- Le toit végétalisé favorisera la rétention des eaux de pluie et apportera de la biodiversité.

Henri BATTIE et la direction de COFORET
Un projet soutenu par la Région Auvergne-Rhône-Alpes.


